
What is Brazed Plate Heat Exchanger
Brazed heat exchanger (BPHE) is a type of compact heat exchanger that consists of corrugated metal plates that are brazed together to form a single unit. The brazing process involves melting a filler material, tipically copper-based alloy ( Stainless or Nickle are available) between the plates to create a strong and leak-proof joint.


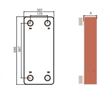
Dimensions in mm


Dimensions in mm


Dimensions in mm


Dimensions in mm


Dimensions in mm


Dimensions in mm


Dimensions in mm


Dimensions in mm
A measure (mm): BL95A=10.2+ 2.31×N; BL95B=11+2.81×N:
BL95C=11+2.81×N
Max pressure (bar): 30 / 45
Max flowrate (m³/h): 34/ 60
Volume per channel (L): 0.2 / 0.25
Port Size (mm): 50/ 65
Plate Combination Options: D,H,X


Dimensions in mm
A measure (mm): BL95A=10.2+ 2.31×N; BL95B=11+2.81×N:
BL95C=11+2.81×N
Max pressure (bar): 30 / 45
Max flowrate (m³/h): 34/ 60
Volume per channel (L): 0.2 / 0.25
Port Size (mm): 50/ 65
Plate Combination Options: D,H,X


Dimensions in mm


Dimensions in mm


Dimensions in mm


Dimensions in mm


Dimensions in mm


Dimensions in mm


Dimensions in mm


Dimensions in mm



